Ikkunat ja ovet
Ikkunoiden ja ovien lisäys hirsiseiniin toimii kuten normaaleilla seinillä. Ainoa ero hirsi- ja tavallisen seinän välillä on se, että ikkuna tai ovi ei katkaise alla olevaa hirsiseinää kohdaltaan pois vaan seinä jää ikkunasymbolin alle. Tämän vuoksi hirsiseiniin lisätyillä ikkunoilla ja ovilla käytetään aina valkoista (väri 255) taustatäyttöä.
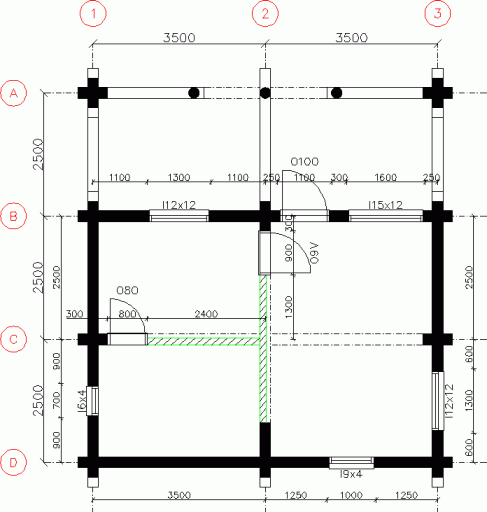
Ikkunoiden ja ovien sijoittaminen
Toimi näin:
-
Valitse Arkkitehti-välilehti > Ikkuna/ovi-ryhmä > Määritä.
-
Valitse A -tyypin ikkuna, jonka koko on 1200x1200.
-
Osoita moduulilinjalla B olevaa seinää läheltä seinän vasemmanpuoleista päätä. Ikkunan sijoitus lukitsee ikkunan seinän suuntaiselle linjalle ja sijoittaa origon (ks. kuvan nuoli) seinän vasempaan päätyyn. Ikkuna näytetään tarkoituksella hirren sivussa, koska mustat karmit eivät erotu mustasta hirrestä muutoin.
-
Sijoitetaan ikkuna seinän keskelle linjojen 1 ja 2 väliin. Tämä tapahtuu helpoiten valitsemalla ensin ikkunalle sijoituspisteeksi keskipisteen painamalla kerran TAB -näppäintä. Ikkunoilla ja ovilla on sijoituspisteet kummassakin reunassa sekä keskipisteessä. Aktiivista sijoituspistettä voi sijoituksen yhteydessä vaihtaa TAB -näppäimellä.
-
Kun sijoituspiste ikkunalle on valittuna paina SHIFT -painike pohjaan ja paina hiiren oikeanpuoleista painiketta. Ruudulle avautuu väliaikaisen snapin (eli vain seuraavaan pisteosoitukseen tulevan) valikon.
-
Valitse valikosta vaihtoehto 2:n pisteen väliin.
-
Osoita piste 1.
-
Osoita piste 2.
Ikkuna sijoittuu puoliväliin osoitettuja pisteitä. Vaihtoehtoisesti voit käyttää myös keskipiste-snappia.
Käytetään toisen ikkunan sijoitukseen apuna toista pisteenosoitustekniikkaa.
Toimi näin:
-
Valitse Arkkitehti-välilehti > Ikkuna/ovi-ryhmä > Määritä. Valitse ikkuna, jonka koko on 1500x1200.
-
Osoita moduulilinjan B olevaa seinää läheltä oikeaa päätyä. Nyt sijoitusorigo sijoittuu seinän oikeaan reunaan.
-
Valitse ikkunan sijoituspisteeksi ikkunan oikea reuna TAB -näppäimellä (paina kahdesti).
-
Avaa väliaikainen snap -valikko SHIFT ja hiiren oikea -painike yhdistelmällä.
-
Valitse valikosta Piste hiusristikon suuntaan.
-
Osoita peruspisteeksi piste 1 (piste josta haluttu mitta halutaan antaa valittuun suuntaan).
-
Osoita hiusristikolla reilusti pisteen 1 vasemmalle puolelle.
-
Syötä näppäimistöllä siirtymäksi 300 mm. Paina ENTER.
Ikkuna sijoittuu seinään osoitetusta pisteestä 300 mm:n päähän.
Sijoita muut ikkunat mallin mukaisesti seiniin. Ovet löytyvät samasta toiminnosta ja sijoitus toimii samalla tavalla kuin ikkunoidenkin sijoitus.
Ikkunoiden ja ovien muokkaus
Ikkunoita ja ovia voi muokata kaksoisnapauttamalla. Määritellään ikkunoille ja oville tarvittavat asennusvarat sekä muokataan kokoa/ulkoasua halutunlaiseksi.
Toimi näin:
-
Tuplaklikkaa moduulilinjalla B olevaa oikeanpuoleista ikkunaa (I15x12). Ruudulle aukeaa muokkausdialogi.
-
Muokataan ikkunan asennusvarat. Tämä aloitetaan painamalla painiketta: Asennusvarat ja kiinnityspiste.
-
Syötä asennusvaroiksi jokaiselle sivulle 50 mm. Kuittaa ok.
-
Kuittaa ok, jolloin tiedot kirjataan ikkunalle.
Kopioidaan seuraavaksi asennusvara tiedot muillekkin ikkunoille.
-
Valitse äsken muokattu ikkuna ja toiminto
(Kopioi
ikkunan tiedot) . Ruudulle avautuu dialogi erilaisista tiedoista, joita voidaan ikkunalta
kopioida. Kytkemällä rukseja tietojen eteen valitaan toisille ikkunoille
kopioitavat tiedot.
-
Valitse kopioitavaksi tiedoiksi Asennusvarat . Kuittaa OK.
-
Valitse kuvasta kaikki ikkunat (esim. aluevalinnalla) ja kuittaa ENTER -painikkeella.
Ovelle voi muokkauksen tehdä samalla tavalla.
Seuraavaksi Tilat ja lautatasot.