Protecting intellectual property in design projects
Challenges
Distribution of the whole 3D model
Subcontractors with full access to the plant or ship model are able to publish it as an eBrowser model, or measure and examine objects in model areas that are not relevant for their work.
Plant owners and shipyards prefer that each subcontractor is able to access only the part of the model that they need in order to complete their design tasks.
In replicated projects, the CoDesigner system replicated the whole 3D model to each replica site.
Core knowledge in specific locations in the 3D model
Sometimes a specific area in the 3D model implements core knowledge of the plant owner or shipyard. In such a case, this part of the 3D model is not wanted to be shared with design subcontractors or with all workers via drawings.
Solutions
CADMATIC software includes functions such as filtered replication and drawing mask boxes which help you protect certain parts of the 3D model.
Filtered replication means spatial filtering of 3D objects between the master site and the replica site. The master site can enable it when setting up COS replication with a new replica.
Filtered replication is implemented via 3D box based filters. A pass box lets any 3D object that is either completely or partially inside the box to be replicated from the master site to the replica. Replication of objects that are completely outside the pass boxes is blocked. A deny box blocks the replication of any object that is completely inside the box. In master–replica settings, the master site can define several pass boxes and one deny box. In a master–replica chain, a replica inherits the filtering assigned to its master.
Mask boxes are used to restrict visibility in drawings. For documents, you can define one mask box. Objects that are completely inside a mask box are not shown in drawing views. Objects that are partially inside a mask box are clipped in the visualization, and the part of the object that is inside the box is not shown.
If a drawing is created at a replica site and a deny box is defined in the replication settings, then each such drawing automatically has a default mask box with the size and location of the deny box of that replica site. If you are working with the drawing, you can expand the mask box if needed.
When replicating documents, CoDesigner checks first at the master site if replication is filtered. If it is, the document has to fulfill these conditions to get replicated:
- The 3D space, scoped by the drawing views, is fully enclosed by one of the pass boxes of the target replica.
- If a deny box is defined for the target replica, the drawing has a mask box that encloses the deny box.
Thus, drawings created at a filtered replica can always be edited at the master site. Also, drawings can be created at the master site, with a suitable mask box added, and then be passed on to a filtered replica to be edited there.
CADMATIC P&ID does not support replication filters. In case CoDesigner for Diagram is in use on the master site, the replication is possible and all diagrams can be replicated. If any of the diagrams are published to 3D, the integration objects are available for all sites.
Note: After the replica server has replicated for the first time with its master server, it is no more possible to modify the replication filtering.
When you create a Plant Modeller area model on a filtered replica site with pass boxes, you are asked to select one of the pass boxes of the replica site. A Plant Modeller area created at a replica cannot be bigger than the selected pass box.
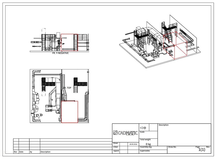
Use case 1
The picture above shows a small 3D plant model with a special area marked as “SECRET”.
The intent is to use two subcontractors, A and B, for the detail design as shown in the picture below. Neither of them should be able to see the full model. The secret space can only be visible at the master site, but subcontractor A must be able to do detail design documents in the area that encloses the secret space. The pass boxes of the subcontractors overlap so that they can share the common design interface to connect a pipeline from A to B, and so on.
When the replication between the master site and site A has been completed for the first time, the model at site A looks as shown in the image below:
Note: The 3D objects, intersecting with the pass box, are shown as unclipped. However, in 3D digitizing, the modeler is forced to only work inside the pass box and cannot create 3D model objects outside the pass box. The deny box is shown as an opaque black box.
The real-world work flow could be like this:
|
Master Site |
Subcontractor A at Site A |
Subcontractor B at Site B |
|
Do the modeling for the initial and basic design. |
|
|
|
Define replica sites A & B: Two pass boxes + a deny box |
|
|
|
Replication started |
Replication started |
Replication started |
|
|
Drawings replicated to the site, if the minimum bounding box of the drawing views fits to one of the pass boxes. |
Drawings replicated to site, if the minimum bounding box of the drawing views fits to one of the pass boxes. |
|
Continue modeling anywhere inside the whole 3D model. |
Start modeling for detail design in box A. |
Start modeling for detail design in box B. |
|
Create drawings with or without a mask box, according to the intended usage of the documents. |
Create drawings. The scope is limited to the pass box A. The secret space (deny box) is masked in each document. |
Create drawings. The scope is limited to the pass box B. |
An example drawing, made or edited at A, is shown below. The content of the mask box is cleared in the views by the system, but the box itself is not drawn. The size and location of the mask box defaults to the deny box of replica A.
Use case 2
A shipyard wants to buy designs from two subcontractors, A and B. Subcontractor A will design some blocks at the aft and some at the fore, and B will design the mid ship part. The shipyard wants to design the engine room and does not want to share the engine room model with A or B.
The shipyard defines two filtered replicas for the main COS server at the shipyard: one for A and one for B. Replica A will have two pass boxes (the boxes with red dashed lines) and one deny box (the yellow box with black dashed lines). Replica B will have one pass box (the box with blue dashed lines).